About 26501 Cotton Bayou Drive
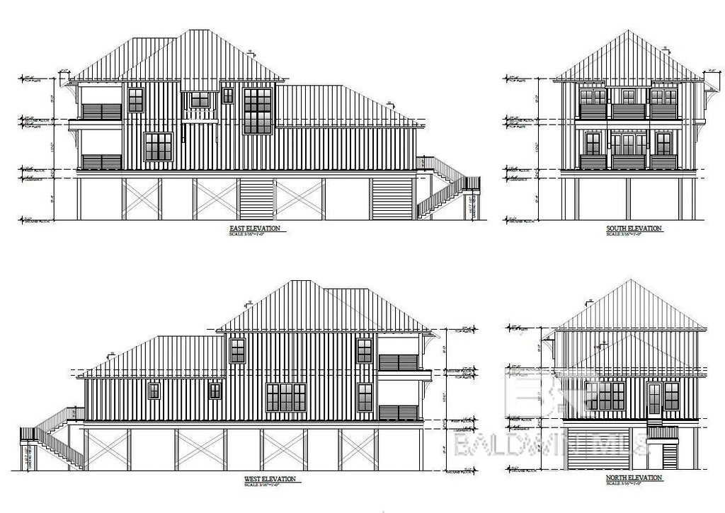
Located on sought-after Cotton Bayou Drive in Orange Beach, this new construction beach house from Limitless Homes offers 3,076 square feet of elevated coastal living. Built on pilings with covered parking underneath—including space for a golf cart and enclosed storage—this 4-bedroom, 3.5-bath home combines style, function, and prime location. Currently under construction, the home is filled with high-end details and features the primary suite on the main level, with three additional bedrooms upstairs. One of the upper bedrooms includes an en-suite bath, making it an ideal second primary retreat for guests if needed. Expansive front porches span the width of the home and offer beautiful stunning views looking toward Cotton Bayou, perfect for enjoying the coastal breeze. Whether as a full-time residence or coastal getaway, this home places you steps from the best of Orange Beach—less than 5 minutes to beach access, Publix, Gulf State Park trails, and top marinas, including Romar Marina just across the street. Dining, shopping, and outdoor recreation are all just minutes away too. This is a rare opportunity to own a luxury beach home in one of Orange Beach’s most convenient and scenic locations with no HOA. Additional perks include warranty, termite bond, irrigation system and impact-rated windows. Estimated completion is spring/summer 2026. Buyer to verify all information during due diligence.
Features of 26501 Cotton Bayou Drive
MLS® # | 385767 |
---|---|
Price | $1,300,000 |
Bedrooms | 4 |
Bathrooms | 4.00 |
Full Baths | 3 |
Half Baths | 1 |
Square Footage | 3,026 |
Acres | 0.53 |
Year Built | 2026 |
Type | Residential |
Sub-Type | Raised Beach |
Style | Raised Beach |
Status | Active |
Community Information
Address | 26501 Cotton Bayou Drive |
---|---|
Area | Orange Beach 1 |
Subdivision | None |
City | Orange Beach |
County | Baldwin |
State | AL |
Zip Code | 36561 |
Amenities
Amenities | Other |
---|---|
Parking | Attached, Golf Cart Garage, See Remarks, Three Car Carport |
View | Indirect Bayou-Across Rd |
Is Waterfront | No |
Waterfront | Bayou Accs (<=1/4 Mi) |
Has Pool | No |
Interior
Interior | Tile, Other Floors-See Remarks |
---|---|
Interior Features | Ceiling Fan(s), Split Bedroom Plan |
Appliances | Dishwasher, Disposal, Microwave |
Heating | Electric, Heat Pump |
Fireplace | No |
# of Stories | 1 |
Stories | One and One Half |
Has Basement | No |
Exterior
Exterior | Hardboard, Fortified-Gold |
---|---|
Exterior Features | Termite Contract |
Lot Description | Less than 1 acre, Few Trees |
Roof | Metal |
Construction | New Construction |
Foundation | Pilings |
School Information
Elementary | Orange Beach Elementary |
---|---|
Middle | Orange Beach Middle |
High | Orange Beach High |
Additional Information
Foreclosure | No |
---|---|
Short Sale | No |
Listing Details
Office | Bellator Real Estate, LLC |
---|---|
Contact Info | PHONE: 251-510-8103 |